Neubau eines Gemeinschaftswohnhauses für 5-7 Menschen in Vollholzbauweise

2020-2022, ca. 500 qm Wohnfläche, Machbarkeitsstudie, Lph. 1-4

Entwicklung eines neuen Wohnmodells in Form eines Geschosswohnungsbaus in innerstädtischer Lage.
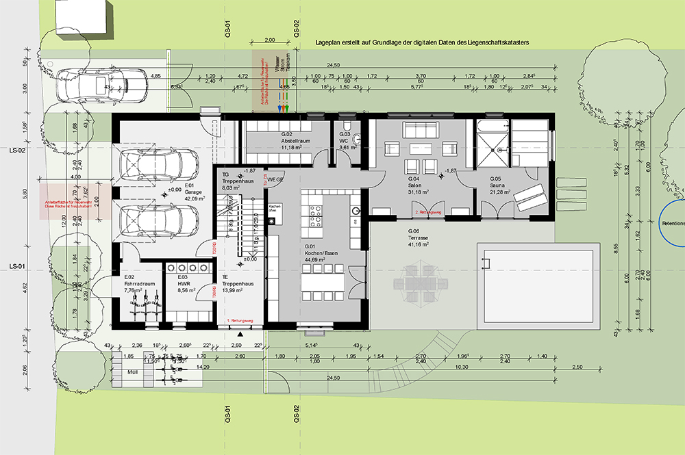
Raumstrukturen für das Zusammenleben von 5-7 Menschen in persönlichen Wohnflächen verbunden mit gemeinsam genutzten Wohn-, Ess-, Küchen- und Gartenflächen mit Pool für die gelebte Gemeinschaft.

Auf die Hanglage, die einen schönen Blick auf Dresden ermöglicht, reagieren die versetzten Stockwerken (Split-Level), die zudem über ein großzügiges Treppenhaus die internen Verbindungen der einzelnen Wohnungen stärken.

Die Ausführung ist in ökologisch nachhaltiger Vollholzbauweise geplant.